The Nave & The Loft, Lymington: Church conversion & new rear extension to create new apartments

Services: Design, Planning & Building Regulation applications, contract administration / site supervision.

 


Woodlocks Farm, Upham: Extension over Orangery to create en-suite bathroom

Services: Design, Planning & Building Regulation applications.

 


Dalton design, Chandlers Ford: Studio / garden room extension (Own house)

Services: Design, Planning & Building Regulation applications, contract administration / site supervision.


Dalton design, Chandlers Ford: Kitchen Refurbishment (Own house)

Services: Design, Planning & Building Regulation applications, contract administration / site supervision.


Tapas Barcelona, Southampton: New internal fitting out to create new bar in Guildhall Square

Services: Planning applications, Landlords approval and working with client’s interior designers, contract administration / site supervision.


Oxfords Bar Restaurant, Southampton: Additional bar / restaurant / jazz bar within basement area. (Not developed)

Services: Feasibility & Concept / planning / design / Building Regulation approval.


IBM UK / Hays DSIA UK: New Computer Facilities, Cedar House, Ancells Business Park, Fleet, Hants. Fitting out of premises to create new computer rooms

Services: Design, Planning, Building Regulations & Architectural work.


Chichester Yacht Club: Pergola open structure extension to restaurant area

Services: Concept / final Design, Planning application.


Ideal Leisure Ltd, Chichester: The Boat House Café, Pergola open structure extension to café

Services: Design & Planning application.


Ideal Leisure Ltd,  No 5 Bridge Street, Winchester: Creation of new bar / restaurant & fitting out with B&B rooms at upper level

Services: Space planning, Building Regulation application and working drawings.


Ideal Leisure Ltd, Kimbridge, Romsey: Kimbridge Barn – barn conversion to new cafe / restaurant and wedding reception facilities

Services: Appointed to assist client with landlord negotiations and organising schedule of delapidations / structural & condition survey of the premises.


Calcot Renovations, Calcot Lane, Curdridge: Barn & redundant farm building conversions to dwellings, 

Services: Planning & Building Regulation applications, detailed drawings for construction.


Screenbase Ltd, Andover, Hants: 12000 sq.ft. Factory warehouse extension and alterations

Services: Design, planning, Building Regulations, Space Planning & Architectural work. Project Management / Supervision.


MINOLTA DIGITAL CAMERA

Stoneham Golf Club, Bassett, Southampton: Interior design / total refurbishment of clubhouse including bar, restaurant and changing rooms

Services: Concept / final design, interior design, detailed drawings, tendering, contract administration / site supervision.


University of Southampton: Boldrewood, Medical Building. Nuclear Magnetic Resonance (NMR), Facility used in determining complex molecular structures and enabling quality, high-resolution chemical, life science and drug discovery experiments.

Services: Design, planning, Building Regulations, Space Planning & Architectural work. Project Management / Supervision and working closely with Professor Matt Crump. Appointed as consultant to carry out and oversee the above for Architect’s – Stephen’s Cox Associates. (First installation in the UK)


Terry Farrell & Partners Architects: Proposed 18 hole golf course, The Grove, Watford

Services: Appointed to assist in Design & Build competitive pitch for the project. Design, Planning & Design Feasibility Study.


Windlesham Golf Management Ltd: 18 hole golf course, practice ground and 12000 sq.ft. clubhouse, Windlesham, Surrey

Services: Design, Planning, Building Regulations & Architectural work. Provision of detailed Design drawings and site supervision during construction. Course design undertaken jointly with Seniors European tour player -Tommy Horton and agronomists McMillan Shiels.


The Mill House, Bosham, Chichester: Summerhouse replacement with Pergola structure to garden area

Services: Concept / final Design, Planning & Listed Building Consent applications.


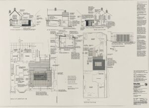
Calcot Renovations, Whitehill Cottage, Upham: Total renovation and extension

Services: Planning & Building Regulations and detailed drawings for construction.


Dalton design: Samples of drawings & sketches

General: In this section, you can view samples of drawings and hand drawn sketches prepared by Bob Dalton, which include golf course design work undertaken at various golf courses around the country.


Church Cottage, Bosham: New Orangery Extension to Listed Building

Services: Planning & Building Regulations and detailed drawings for construction.


Ideal Leisure Ltd, Chichester: The Boat House Café 2023

Services: Planning & Building Regulation applications & project management.

 


Orangery Extension, High Wycombe 2025: 

Services: Design, Planning & Building Regulation applications & project management & site supervision.


Dexory Ltd, Wallingford, Oxford 2025:  Internal fitting out & new mezzanine floor

Services: Design, Planning & Building Regulation applications, interior design, project management & site supervision.


Garden Pergola,  Bishops  Stortford,  Hertfordshire

Services: Design, Planning & Listed Building Consent  applications. 


Garden Pergola,  Canford Cliffs, Bournemouth

Services: Design, Planning & Listed Building Consent  applications.